物件一覧

物件

売買物件

物件イメージ01

⼭梨県⼭梨市歌⽥(売地)

価格 719万円~
所在地 ⼭梨県⼭梨市歌⽥
最寄駅 JR中央本線 ⼭梨市 徒歩38分

⽇当たり良い。市⽴⽇川⼩学校まで約0.5km!!
閑静な住宅街です。
チェックポイント!
プロパンガス,電気,上⽔道,下⽔道,側溝

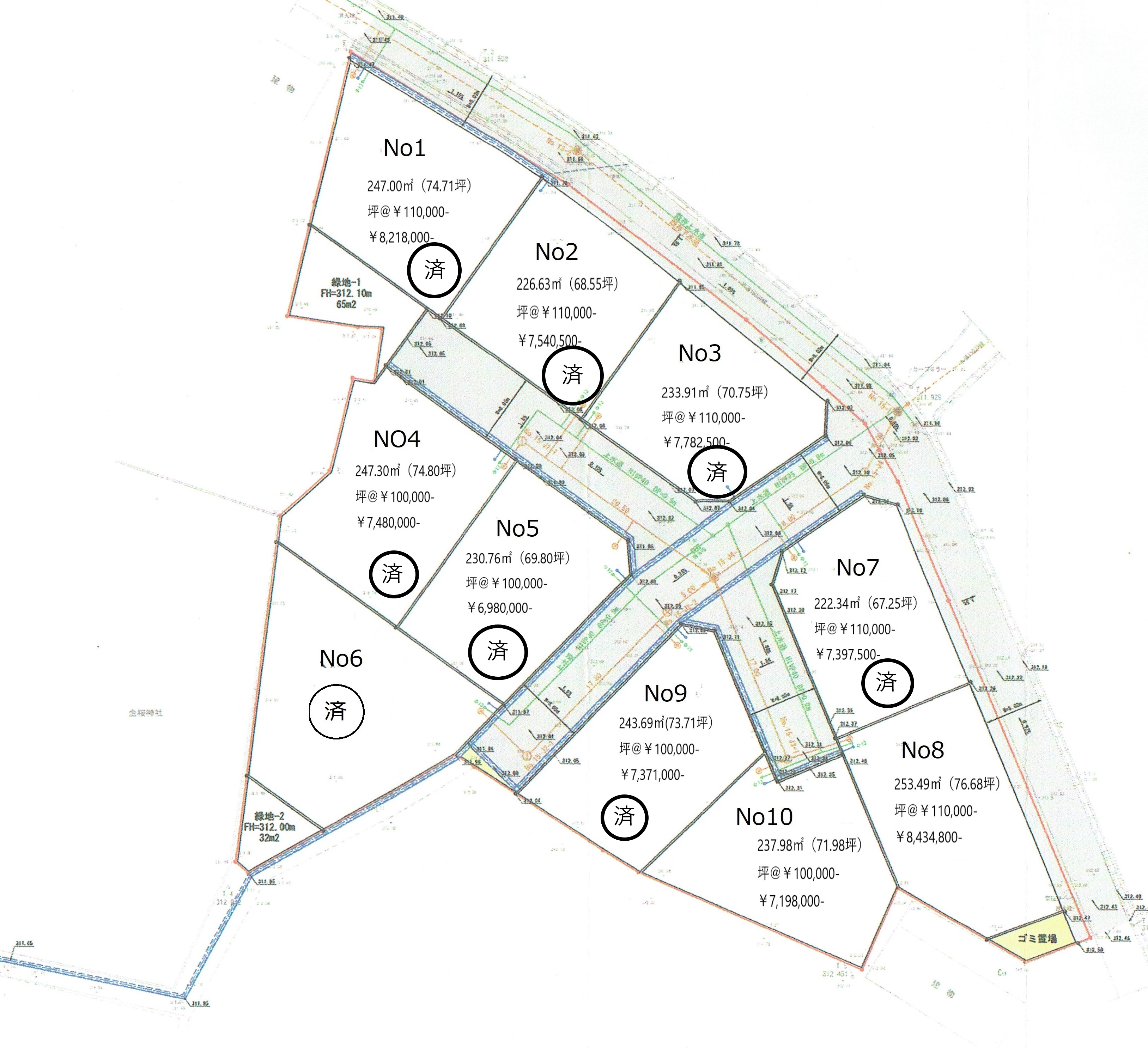
物件イメージ01

甲府市善光寺 (分譲地)

価格 971万円~

所在地 甲府市善光寺3丁目1988-1番地

最寄駅 JR身延線 善光寺駅 徒歩4分

公営水道,公共下水,都市ガス,電気